|
Оферта №16077, Цена: 229613 EUR Тристаен, София, Левски Г, 108 кв.м, ет. 2/9, Тухла
|
|
|
Площ 108 м2, Етаж: 2 от 9
Строителство : Тухла
Отопление : Газ
Агенция АНРИ прeдлага тристаен апартамент в новострояща се гухлена сграда. Луксозни общи части, асансьор.Доказан строител. Пусков срок 2027 год.
МЕСТОПОЛОЖЕНИЕ: Намира се до спирки на градския транспорт, бъдеща метростанция.
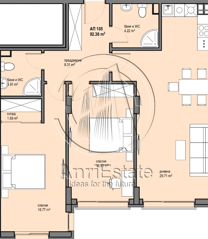
РАЗПРЕДЕЛЕНИЕ: 92,36 кв.м. застроена площ. Състои се от предверие, хол с кухненски бокс, две спални, две бани с тоалетни, складово помещение, 10,25 кв.м. тераса.
СЪСТОЯНИЕ: Продава се на шпакловка и замазка. Отопление на газ.
ИЗЛОЖЕНИЕ: Запад.
Възможност за закупуване на паркомясто или гараж.
Агенция АНРИ прeдлага тристаен апартамент в новострояща се гухлена сграда. Луксозни общи части, асансьор.Доказан строител. Пусков срок 2027 год.
МЕСТОПОЛОЖЕНИЕ: Намира се до спирки на градския транспорт, бъдеща метростанция.
РАЗПРЕДЕЛЕНИЕ: 92,36 кв.м. застроена площ. Състои се от предверие, хол с кухненски бокс, две спални, две бани с тоалет... |
Брокер: Брокер
Телефон:
Мобилен: 0885980205
|
|
Брокер: Брокер
Офис : Централен
Телефон:
Мобилен: 0885980205
e-mail : info1@anri.bg
|
|
|
|
|